ロゴ ロゴ

カレンダーアイコン イベント
メールアイコン お問い合わせ

【完成見学会】焼津市祢宜島 戸建てリノベーションモデルハウス

カレンダーアイコン 2026年4月24日(金)〜5月30日(土)  
10:00-12:00/13:00-15:00/15:00-17:00
ピンアイコン 焼津市祢宜島526-7
【完成見学会】焼津市祢宜島 戸建てリノベーションモデルハウス

【モデルハウス見学会 & 無料相談会 開催中】
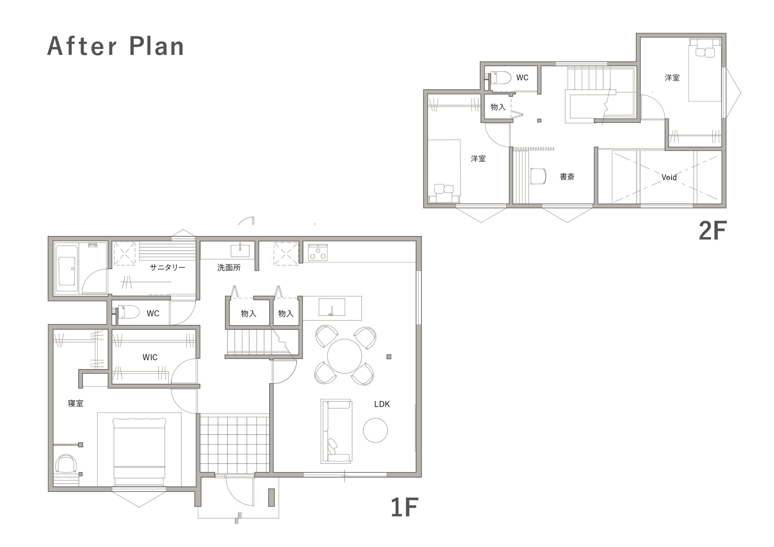
築35年の住まいを、劇的に生まれ変わらせた「まるごと戸建てリノベーション」

焼津市祢宜島に、リノベーション展示場がグランドオープンしました!

お申し込みはこちら
補足画像

築35年の2階建てが、新築以上によみがえりました!

補足画像

冬場のヒートショックリスクを軽減し、健康で快適な住環境と高い省エネ性を実現しました。

また、広々とした吹き抜けLDKが開放感のある心地よい空間を生み出しています。

補足画像

夏は涼しく、冬は暖かい快適な住まいと、「リノベでここまでできる」というリノベーションならではの魅力を、ぜひ実際にご体感ください。

ご家族連れでのご見学も大歓迎です。
ご相談・お見積もりはもちろん無料です。

初めての方も、どうぞお気軽にご相談ください。

こんな方におすすめの見学会です

・まずは一度リノベーションの家を体感して見たい方
・ご両親から家を受け継ぐ予定で、自分たちのライフスタイルに合ったリノベーションを考えている方
・今の家にこれからも長く住み続けたいが、断熱性や耐震性に不安を感じている方
・見た目のデザインだけでなく、家の性能や構造、品質にこだわって会社を選びたい方

イベント概要

  • 開催日時
    2026年4月24日(金)〜5月30日(土)  10:00-12:00/13:00-15:00/15:00-17:00
  • 会場
    焼津市祢宜島526-7
  • ご予約
    完全予約制|定休日:毎週水曜日
  • 駐車場
    会場にご用意しております

お客様へのお約束

見学会にご参加いただいたからといって、強引な営業活動は一切行いません。
私たちの家づくりに対する想いと、「未来まで、ずっと心地よく」暮らしていただくためのこだわりを、まずはお気軽にご覧いただきたいと考えております。
ご家族の夢を叶える家づくりの第一歩として、ぜひこの機会をご活用ください。
皆様のご来場を、心よりお待ちしております。

ご予約フォーム

ENTRY

    • イベント名

      必須
    • ご予約希望日時

      必須
      第一候補
      第二候補
    • お名前

      必須
    • フリガナ

      必須
    • 電話番号

      必須
    • メールアドレス

      必須
    • 住所

      必須
    • ご要望など

    当社のプライバシーポリシー  について、
    ご同意の上、確認画面へお進みください。